1. Độ dốc của đường ống không đúng:
Độ dốc lý tưởng là 6,5 mm cho 300 mm chiều dài ống (2%). Với độ dốc này, cho phép nước thải chảy chậm đủ để mang theo chất rắn và cũng đủ nhanh để vét sạch thành của ống. Ống dốc quá (>4%) cũng dễ bị tắc như ống có độ dốc không đủ, bởi vì chất lỏng di chuyển quá nhanh và để lại chất rắn ở phía sau.

2. Bẫy nước không được thông khí:
Bẫy nước và thông khí là những khái niệm dễ bị hiểu sai nhất của hệ thống nước .
Chức năng chính của chúng là duy trì ngăn cách vệ sinh giữa không gian sinh hoạt và hệ thống nước thải. Nếu không có bẫy nước ngăn cách thiết bị, các khí độc, hôi thối sẽ lọt vào trong nhà. Nếu thông khí không đúng cách, nước trong các bẫy sẽ bị hút hết, để lại bẫy nước bị khô và vô dụng.

3. Ống thông khí nằm ngang bên dưới lỗ xả tràn:
Tất cả các cách thông khí cho bẫy được chia làm 2 loại: ướt và khô. Thông khí ướt là sử dụng ống thoát quá khổ mà cũng làm ống thông khí. Thông khí khô là dùng các ống riêng chỉ có 1 chức năng là cung cấp khí cho hệ thống. Cả 2 loại đều bị mất tác dụng khi bị lấp kín, nhưng thông khí ướt được giữ thông thoáng bằng sự rửa trôi của dòng nước thải chảy xuống. Tuy nhiên, nước mà dùng để rửa trôi trong hệ thống thông khí khô lắp đặt không đúng cách, có thể bị tắc cùng với các chất thải mà nó mang theo cùng.

4. Không đủ khoảng trống thông khí:
Để đảm bảo nước thải không bị hút ngược trở lại đường cấp nước, khoảng trống nhỏ nhất cần phải được duy trì giữa vòi nước và lỗ xả tràn của thiết bị (bồn rửa). Hay xảy ra với vòi xịt (sen) không có van chặn 1 chiều.

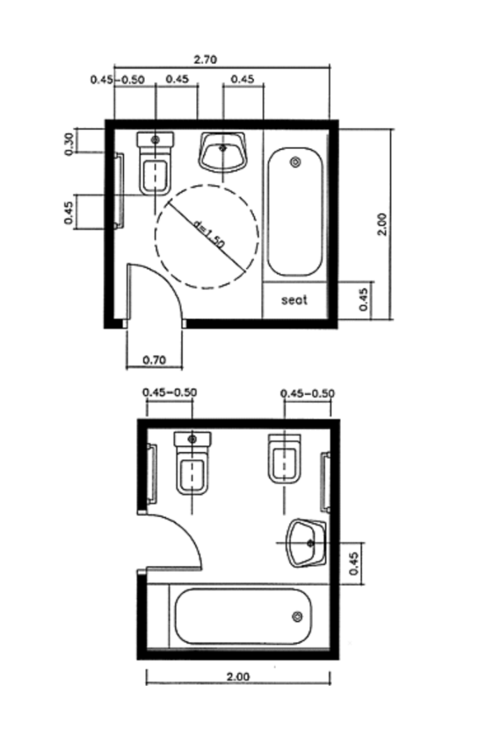
5. Không đủ không gian xung quanh bệt xí và chậu rửa:
Phải bố trí đủ không gian, để những người cao lớn có thể sử dụng một cách thoải mái. Khoảng cách tối thiểu được chỉ ra ở hình dưới (đơn vị mét).
6. Áp lực và nhiệt độ van xả của bình nước nóng không được điều chỉnh đúng
Nhà thầu cơ điện cho hay, nếu không có thiết bị bảo vệ, nhiệt độ và áp lực của nước nóng sẽ tiếp tục tăng cho đến khi làm nổ bình nước nóng. Để bảo vệ bình và tránh khỏi những nguy hiểm này, cần phải lắp đặt van xả an toàn cho bình nước nóng (nếu bình không được trang bị). Van này sẽ tự động xả nước nóng ra ngoài khi mà nước trong bình vượt quá nhiệt độ và áp suất cài đặt. Đường ống thoát của van xả phải lắp đúng cỡ, đúng độ dốc, không được có van để đảm bảo thoát nước của van khi xả ra.

6. Áp lực và nhiệt độ van xả của bình nước nóng không được điều chỉnh đúng